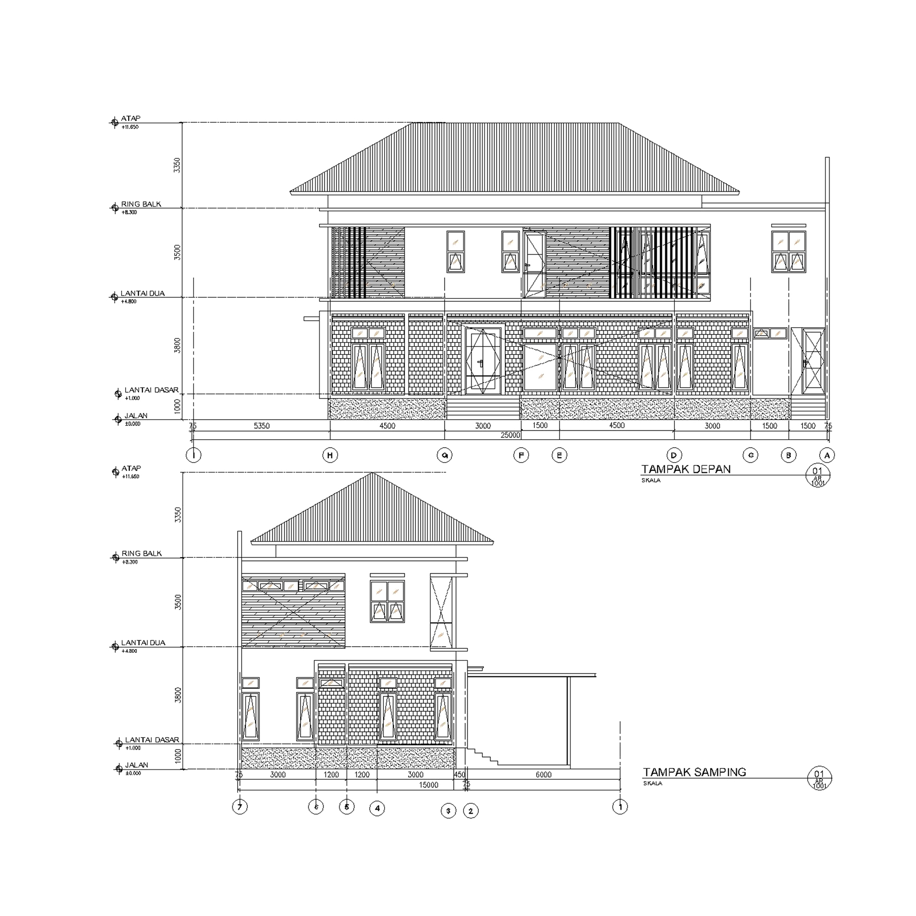
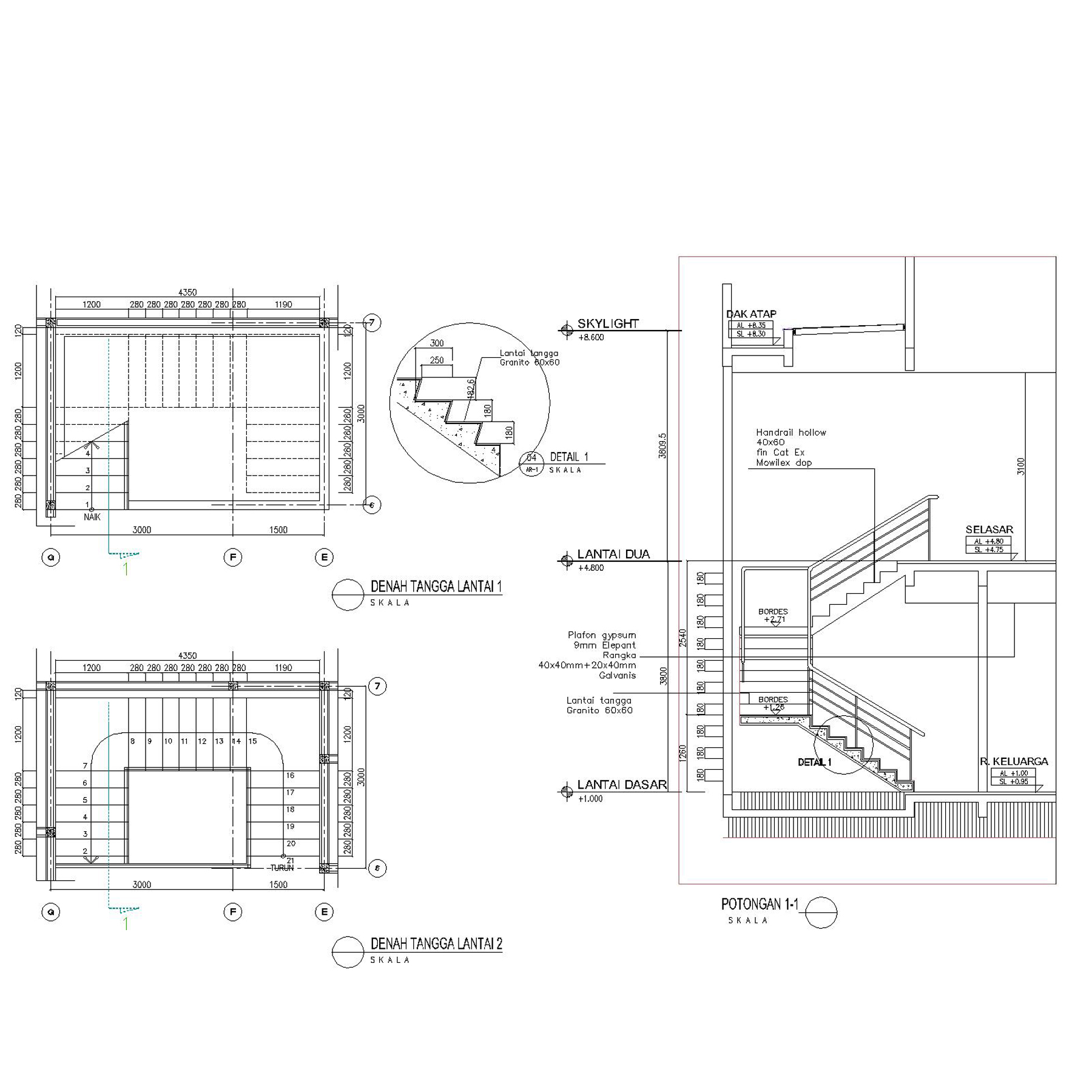
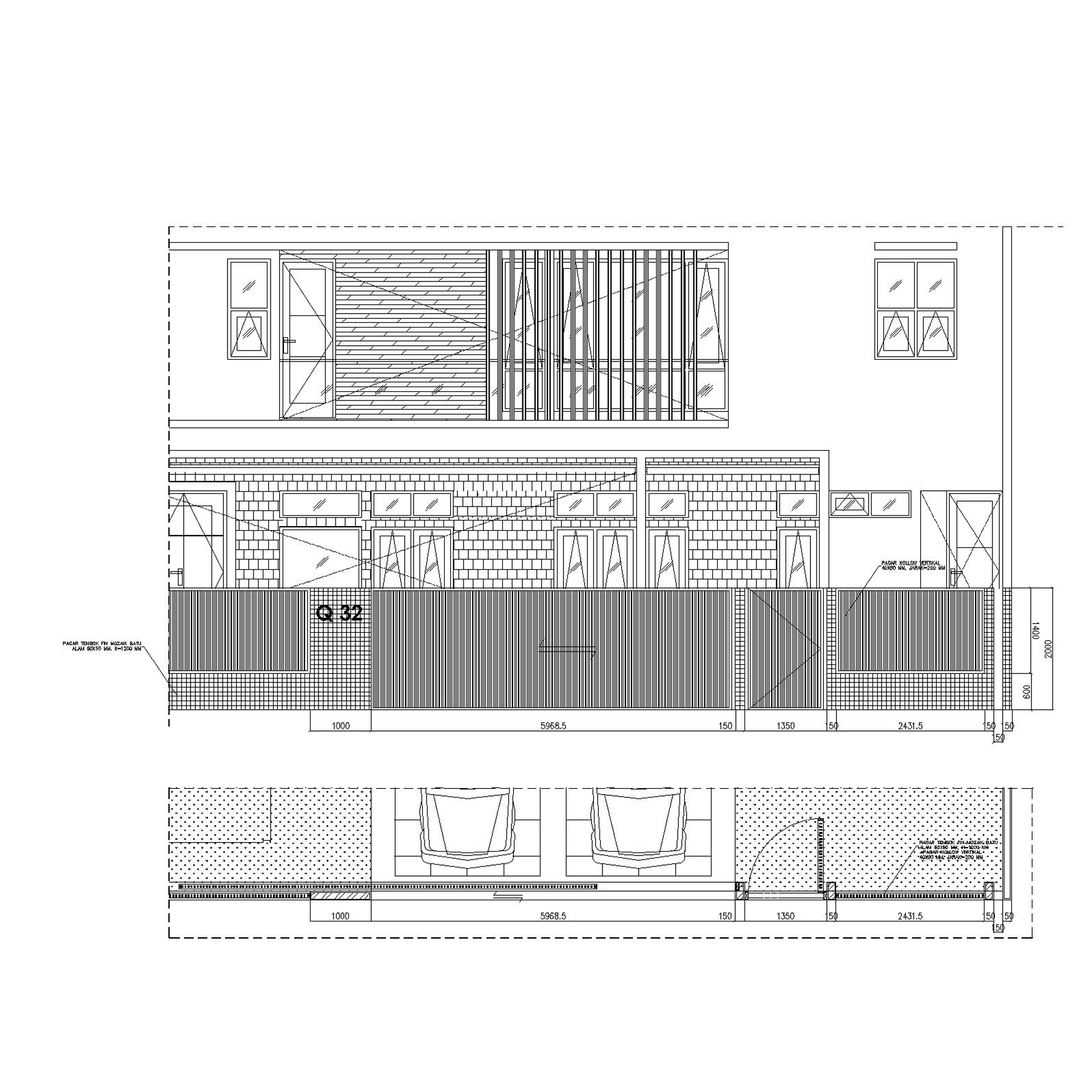
Menu home profile studio people publication project g7-12 house L house a3 house Q32 HOUSE H house bse housing P Shophouse glp house contact Whatsapp Youtube Instagram Q32 House Type : Private HouseArchitect : Diwangkara ArchitectLocation : Serpong, TangerangSite Area : 368 m2Build Area : 254 m2Year : —